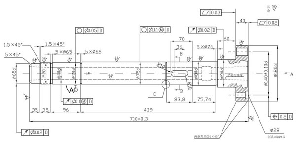
數控加工中心屬于高精度設備,所以它的加工精度極其重要,工件能否達到加工要求就取決于數控加工中心本身的精度,而決定數控加工中心加工質量的就是它的主軸。數控加工中心主軸是把旋轉運動及扭矩通過主軸端部的夾具傳遞給工件和刀具,要求有很高的強度及回轉精度,其結構為空心階梯軸,外圓表面有花鍵、電鍵等功能槽及螺紋。所以,生產主軸的工藝以及加工方法,對整個數控加工中心加工來說都有著非常重要的作用。

數控加工中心主軸的加工工藝路線大致為,首先需要進行圖紙分析,確定切削表面,然后進行表面粗糙度分析,確定每個加工表面的加工精度,以確定切削加工方法。*后根據加工零件的毛坯、熱處理要求、批量生產大小以及加工條件來合理安排其他加工工序。
1 主軸毛坯選擇
毛坯的選擇要根據制造零件的用途以及生產類型來確定。主軸零件要求材料具有良好的機械強度、韌性和耐磨性。這些性質是通過熱處理方法實現的。因此要求材料具有良好的淬火硬度,同時保持材料內在的韌性。低碳合金鋼的韌性優于中碳鋼,故常用于重載、高速的工作環境中。氮化鋼具有淬火變形小的特點,因此精密主軸常使用此種材料作為毛坯件。
毛坯主要包括兩類形式:棒料和鍛件。棒料主要用于單件小批量生產零件,外圓尺寸變化不大或光軸零件也常使用棒料毛坯。由于鍛造過程中的金屬纖維化提高了材料的機械性能,因此提高了材料的抗拉、抗彎及抗扭強度,所以多數主軸毛坯采用鍛件。
2 主軸材料熱處理
合理選擇加工材料且合理安排熱處理工序對于保障主軸力學性能極其切削加工性能具有重要作用。一般數控加工中心的主軸用45鋼。數控加工中心主軸熱處理工序主要包括:(1)毛坯熱處理,數控加工中心主軸毛坯熱處理主要目的是消除毛坯的鍛造應力,使材料的金相組織*加均勻,利于之后的切削加工工序。
(2)預備熱處理,在進行粗加工和精加工之前,需要進行材料的調質熱處理,以便獲得均勻細密的回火索氏體組織,提高力學性能。(3)*終熱處理,在半精加工之后,精加工之前常加入*終熱處理步驟,精度要求較高的主軸,在淬火回火后還要進行定性處理,定性處理的目的是消除加工的內應力,提高主軸的尺寸穩定性,使它能長期保持精度。定性處理是在精加工之后進行的,如低溫人工時效或水冷處理。
3 加工工序劃分
3.1 粗加工階段
粗加工階段包括毛坯處理、粗加工等步驟。毛坯的處理包括毛坯備料、毛坯鍛造和正火三個工序。粗加工包括銑端面、鉆中心孔及粗加工外圓等工序。粗加工階段的主要目的是用*大的切削用量切除毛坯大部分的切削余量,將毛坯加工到接近工件的*終形狀和尺寸,留下少量的加工余量。
3.2 半精加工階段
半精加工階段包括半精加工前熱處理和半精加工兩方面。半精加工前熱處理是對主軸進行調質處理,使其達到220~240 HBS。半精加工包括車定位錐孔、半精車外圓端面及鉆深孔等工序。半精加工階段的主要目的是為精加工階段做基面準備,為了滿足后面的淬火要求,需將半精加工表面的切削余量至少為2 mm。對于精度要求不高的端面可以在這個階段加工到圖樣規定的要求。
3.3 精加工階段
精加工階段包括精加工前熱處理、精加工前的準備加工和精加工等步驟。精加工前熱處理主要是進行局部高頻淬火處理。然后進行粗磨定位錐面、粗磨外圓、銑鍵槽和花鍵槽等工序。*后進行精加工,粗磨外圓、外錐面以及內錐孔,保證重要表面的加工精度。這一階段的主要目的是將各個表面加工到圖紙所規定的加工要求。因此粗加工、半精加工以及精加工均是以熱處理作為加工階段劃分的邊界。
4 加工順序需注意事項
在進行軸類零件加工時,前一工序需為后一工序準備好定位基準。粗加工和精加工工序的定位基準選擇以后,加工的順序也就大致確定了。在機械加工工序過程中加入必要的熱處理工序,使得數控加工中心主軸加工工藝路線可基本確定為:毛坯制造—正火—車端面鉆中心孔—粗車處理—調質處理—半精加工表面淬火處理—粗、精磨外圓錐面—磨錐孔。在進行加工工序確定時,需注意以下幾個問題。
第一,進行外圓加工順序的安排時,應先加工大直徑外圓,再加工小直徑外圓,以免降低主軸剛度。
第二,基準*好統一,加工過程*好統一選擇頂尖作為定位基準,避免使用錐堵,因此將深孔加工工序安排在*后,另一方面由于深孔加工為粗加工工序,需要將大量金屬切除,容易造成主軸變形,因此深孔加工*好在粗車外圓之后進行。
第三,花鍵槽和鍵槽*好安排在精車之后,粗磨之前。如果在精車之前加工鍵槽,就會使得車削加工不連續,易于損壞刀具。另一方面鍵槽的表面精度很難控制,為了避免在加工過程中主軸主要表面受到損壞,因此將鍵槽加工工序放在主要表面加工之前進行。
第四,由于主軸的螺紋與主軸軸頸有同軸度要求,且半精加工階段易產生應力及熱處理變形等影響,另一方面為了避免在加工螺紋過程中損傷已經精加工的主要表面,因此將螺紋加工放在淬火處理之后的精加工階段進行。
第五,由于數控加工中心主軸的加工要求很高,因此在加工過程中需要進行多次檢驗工序。各個檢驗工序需設置在各個加工階段的前后以及重要加工工序的前后進行,精確度要求較高的零件可以安排探傷工序。
主軸是數控加工中心的核心部件,其加工質量的好壞直接影響著數控加工中心的工作效果及工作效率,因此在加工過程中需要根據數控加工中心的工作條件和工藝要求,制定合理有效的加工工藝和熱處理方案。近幾年來數控加工飛速發展,在數控加工中心主軸的加工過程中可以借助數控加工等設備,利用數控生產能夠有效提高生產效率及零件加工精度,在機械工裝方面可以自制加緊套和錐度套等,以進一步滿足加工要求。


