數控加工中心屬于高精密機床,加工精度要求在1絲以內,加工中心機床在廠家檢測完畢出廠發往客戶前,就要求客戶做好準備接收工作,熟練地操作者、安全的電源、氣壓設備、穩定的地基。這里著重介紹一下地基對數控加工中心的影響。

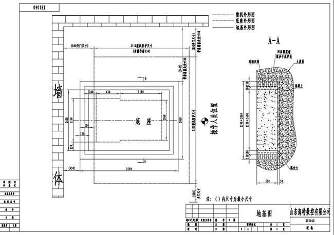
每個型號加工中心地基圖不一樣,請根據的床子索要地基圖。
有些客戶認為地基做不做都可以,對設備影響不大,我可以這么給您說這是您對設備*不負責任的說法,良好的地基對設備后期使用中的穩定性、精度至關重要,一個較差和平常的地基,放上同一臺設備,在長期的日常工作和重力作用下地面會變型,那么隨之我們的設備水平跟著也會變,那么僅此這一個變化就會給我們的加工效率和成品率帶來致命的打擊,有可能您在這種情況下干出的產品都是廢品,這對于加工行業*不能容忍的。
因此,奉勸各位朋友不要抱有僥幸心理,在設備沒發貨前一定要做好地基,這會給后期的工作帶來很多好處。


